我小时候住的院子,有一个大型水塔,那是整个厂区最高的建筑。
每天晚饭后,院子里众兄弟追完《圣斗士星矢》,趁着天没黑,偷偷爬上水塔,在群山环抱中,互射天马流星拳,争执着谁先碰到雅典娜。
直到月亮和星星爬上来,被父母们发现,回家一顿毒打。
小时候以为会在大厂过一辈子,直到后来被生活和成长推得作鸟兽散,一回头,已是四下无人,你会无比怀念那个时代:
CCTV居然在新闻联播前放一部日本热血动漫。
从古至今,登高望远是人类的基本需求,高处总是充满诱惑,一个能看见群山环绕的水塔,一套立于窗前就能看见整个城市的房子,直至幻想有一天登上珠穆朗玛:山高人为峰。
宏大叙事下的房地产越来越安静,徒留怀念和感伤,风起云涌,水大鱼大,纸醉金迷,这些事,过去就过去了。
但这个包裹着心理学、建筑学、符号学、城市学、营销学……等学科的复杂行业,在许多微观层面,又在竭尽全力地登高望远。
最近,一个高端物种在贵阳楼市又有卷土重来、百家争鸣的趋势:大平层。
有不少骨骼清奇的项目上市亮相,去化结果超乎寻常地好,成为市场难得的亮色。
有人的地方就有江湖,有江湖的地方就有高手。
这种华山论剑的局,当然不能少了“一代宗师”。这两天,金融城中海·映山湖加推的两栋大平层也开始认筹。

会当凌绝顶,一览众山小。
欲穷千里目,更上一层楼。
城景,湖景,山景……当我们在讨论大平层的时候,到底在谈论什么?
向上的人生
科学解决不了的事,可以讲讲玄学。
房地产除了政策、市场、金融的体系,不同类型产品,背后也投射着不同人群的心里动机。
年纪轻轻,刚出社会,小心翼翼追逐,谁都渴望第一套房就是严谨的六边形,资产和生活都要安全。
上了年纪,心态和年龄都到了功成身退的时刻,人又总喜欢向低处去的隐逸,一院一世界,一花一岁月的老派洋房和别墅,又得以让余生充满余味:眼睛一睁一闭,一天就过去了。
财富不够,距离来凑。当年龙里很多洋房别墅,或许就是靠着这些悠然故事卖出去的:经济墅,也是墅。

但人生绝大多数进程,我们是不断向上攀爬的,家庭成员越来越多,事业越来越好,希望房子越来越大。
一套城央大平层,就成为很多人心理那个生活制高点。
“居高,临下,望远”的产品内涵,呼应着积极进取,蒸蒸日上的精神意念。
关于大平层,有两个经典传说。
一个发生在深圳。
当年房地产前首富想买深圳湾一号顶楼,“不喜欢上面有人压着我”,结果人家不卖,项目老板要留着自己住,前首富只能退而求其次买下次顶。
一个发生在杭州。
2020年,有媒体报道,一位头部带货主播在杭州钱塘江边一口气买下四套公寓,单价30000元/㎡,每套300㎡。四套公寓一打通,成了一套1200㎡的超级大平层。
文章有一条高赞评论:我们普通人买一套刚需,要考虑户型、楼层、采光、风水、学区、首付,还要考虑按揭是等额本金还是等额本息,LPR浮动利率和固定利率选谁?而有钱人花一千万买一套公寓,又单纯得像个地产小白。
很多时候都这样,越是有缺点的项目,越是喜欢堆砌虚无空洞的外部价值。越高端的项目和产品,反而有内向深刻的简单纯粹:
一眼风景,一块石头,一棵树,都会成为理由。
当然,想让产品真正达到精神制高点,仍需要足够物理条件的叠加演绎。
从汤臣一品,深圳湾一号,钱塘江畔,所有声名显赫背后,都有更为严苛的细节推演:
你的窗外,决定你的价值。
你的地段,决定你的身份。
你的产品,决定你的内涵。
极致的视野
五年时间,从滨湖花城地王生长出的中海映山湖,早已奠定top级的项目观感基础,产品更如高端改善万花筒。

高层,尽管在定位和数据标准上,不那么出挑,但靠着对细节的凝练,价格的坚守,与同类型产品相比,早显出类拔萃。
老派洋房和新潮央墅,锚定城市绝版区位,把功成身退的隐逸生活,拔高到“大隐隐于市”的孤傲感:贵阳只此一处。
当“一代宗师”再亮剑,品磨完中海映山湖的大平层产品,才深刻明白,中海为何能在行业起起伏伏的周期里,屹立四十几年:好项目是对大至城市、小至人性的复合理解。
地段,视野,产品,尽管大平层三重标准缺一不可,但却更认同业内一种更极致的观点:窗外风景才是决定性因素。
为让产品拥有极致视野,我们会发现,大平层项目极少采用围合式、矩阵式布局,即使万不得已,也必须搞出楼间距足够的硕大中庭。但不管怎么排,总差点意思。而放眼全国,诸多真正有代表性的大平层豪宅,多采用一字型或错落式楼栋排布。
窗外风景,就是你的眼界,你的胸怀。不由得想起《人民的名义》中的那句经典台词:
孙连城开悟了,再无烦恼……况且,他还胸怀宇宙。
我们会发现,中海映山湖大平层,也遵循严苛的“视野为王”。
整个悦湖组团,从湖边沿坡地层层向上,纵向的央墅、洋房、大平层建筑互不侵扰,横向的数栋高楼,也呈一字型错落排布,前后完全无遮挡。
加推的第一栋,可称为A区悦湖组团“最后一栋”,向下,与央墅和洋房共享隐逸景观。向上,北面数千亩长坡岭公园苍翠欲滴,辽阔无垠。南向的城景湖景又融汇贯通:抬头满天星,低头水中月。

加推的第二栋,“孤独”的“听湖”,或者更可以拔高到“金融城最后一栋”的意念,96户,独立的景观、大门、公区,自成体系。
它的窗外,远景金融城五光十色,中景长坡岭,又提供着舒缓的视野过度:我与贵阳没有距离,又保持距离。
唯一的地段
2005年10月,上海浦东一个项目开盘预售,价格11万/㎡。当时,上海浦西内环房价不过13000/㎡。惊闻这个价格,习惯了“宁要浦西一张床,不要浦东一套房”的上海人民,吓得半夜惊坐起:谁是汤臣一品?
谁也没料到,多年以后,这个名字会成为全国最纸醉金迷的故事制造机,明星八卦,富豪佳话。抖音上,光是靠着拍汤臣一品进进出出的人,都能火上好一阵:这是谁的女朋友?
地段,地段,地段,李嘉诚的三段论,放到任何时候都适用,但对大平层而言,对地段的要求更为极致。
每一座城市的版图都很广阔,但有且只有一个真正意义的城市锚点,数平方公里地界,成为一座城的超级形象,凝练所有人的价值共识。
什么是超级形象?提起一座城,脑海中首先映出的画面。
上海三件套。北京国贸中国樽。重庆两江交汇。广州小蛮腰……与这些超级形象同框出现的项目,自带流量和傲娇。
上海黄浦江很长,有极致视野的大平层很多,但很多人只记住一个汤臣一品。重庆两江四岸好产品不少,但只有屈指可数的长嘉汇、来福士,能清晰彰显特立独行:真大平层,需要真正让人感受到与城市和鸣的唯一符号性。

新世纪以前,贵阳的超级形象,属于山那边,甲秀楼,南明河。而现在,一条林城东路,串联起这座城最优质的资源,高楼崛起,玻璃幕墙,成为新时代贵阳的超级形象。
锚定金融城的唯一性,才让中海映山湖的“最后一栋”更显神性。
从老贵阳到观山湖,贵阳大平层不在少数,窗外有极致视野风景的产品,也不在少数,这个看湖,那个看山,但并不是每一个山湖风景,都能显现出坐拥和掌控城市的清晰标识:唯一的金融城,成就唯一的映山湖。
蓬勃的空间
刚需、改善、豪宅,房地产进化到现在,尽管不同产品的定义依然掌控在开发商手中,但供需两端的信息差越来越小,各类型产品的空间尺度有相对的标准。
脱离城市讲产品,就是耍流氓。
在北上广深,可能超过两百平才好意思跟人打招呼。可在西南地区,140㎡,是成渝很多大平层豪宅达成共识的入门指标。
再往下,总价门槛太低带来的圈层不够纯粹,“你什么档次”,往上飘忽得太高太远,又脱离实际,不接地气:经济基础决定上层建筑。

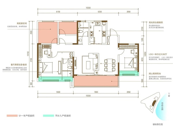
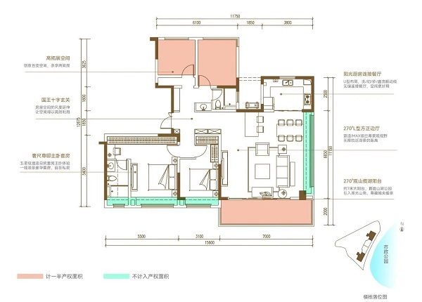
中海映山湖“最后一栋”,均是2T2配置,独立电梯厅入户,大平层标准配置。
两种户型,150㎡,170㎡,空间意念各有千秋:
老派向左,新潮向右。
150㎡,四房两厅两卫,传统横厅,空间通透。大面宽,宅进深。7米宽大横厅,LDK一体化。
整体空间不显得太过跳脱,功能和尺度兼具,还可以根据家庭构成不断调整演化。

更值得一说的是170m²,四房两厅两卫。没想到,中海这一次把印龙泉的“神户型”复刻到了映山湖。
国王十字玄关,270°端厅,先静后动……这个产品在两年前出现时,曾引发不小轰动。有上古时代的贵阳圈内人就转不过弯来:回家就是卧室,我还是觉得别扭。
城市在进步,生活在进步,产品也要跟上脚步。神奇的金融城,神奇的风景,神奇的户型,或许才更配。
好产品能带来无穷想象力,金融城央,映山湖上,中海映山湖大平层的落地窗,就像一块IMAX幕布,每天都在播放着这座城市最新的电影。
又或者,你可以真的在落地窗前挂一块幕布,怀念怀念小时候的《圣斗士星矢》:雅典娜,我来啦!
现在,这部电影的门票并不昂贵,只要229万起,还送十万元的家电礼包。

画家陈丹青说,装逼是种刚需。从小到大,我们总需要一些实实际际的物件来不断证明自己与众不同。
这些物件,是小时候一张满分卷子,高考时一张通知书,又或者是成年后一套大平层。上面清晰地标注着你的学识、身份,乃至奋斗历程。
人生不断进取,又不断自我犒赏,当登家望远,一整个城市尽在眼前:我们就是自己的偶像。(拆房)


