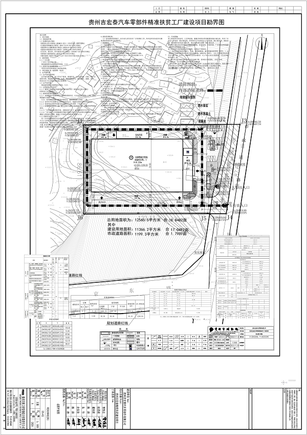
5月14日,贵阳市自然资源和规划局发布关于贵州吉宏泰精准扶贫建设项目建设工程规划许可行政审批批前公示。

公示显示,贵州吉宏泰精准扶贫建设项目位于贵阳市观山湖区现代制造产业园区吉利整车项目西侧,由贵州吉宏泰汽车零部件有限公司建设,此次申报类别为建设工程规划许可证。

该项目总用地面积为12565.46平,计容用地面积为11366.23平,可建设规模面积为22076.5平,绿地率20%,建筑限高24米。

5月14日,贵阳市自然资源和规划局发布关于贵州吉宏泰精准扶贫建设项目建设工程规划许可行政审批批前公示。

公示显示,贵州吉宏泰精准扶贫建设项目位于贵阳市观山湖区现代制造产业园区吉利整车项目西侧,由贵州吉宏泰汽车零部件有限公司建设,此次申报类别为建设工程规划许可证。

该项目总用地面积为12565.46平,计容用地面积为11366.23平,可建设规模面积为22076.5平,绿地率20%,建筑限高24米。

关联楼盘
热门楼盘
查看更多热门楼盘>>